Casa del Pont Vell
L'Ajuntament de Ripollet ja té enllestit el pla d'usos de la casa del Pont Vell, adquirida el 2019, a la carretera de l'Estació 8, per un import de 670.000 €, la qual es destinarà a un casal de barri. El pla, realitzat per MSM Arquitectes, també recull les aportacions d'entitats i veïns i veïnes del barri, i servirà per iniciar la redacció del projecte d'obres que durà a terme l'AMB. S'espera que aquest estigui enllestit el tercer trimestre de 2022 i les obres es puguin iniciar el 2023. La proposta contempla la museïtzació de diferents espais i la construcció de nous, ampliant la primera planta d'un edifici on es pot veure perfectament com era la vida a Ripollet a principis del segle XX.
Aquest projecte neix arran del procés participatiu a càrrec de la Cooperativa La Fàbrica, que va permetre copsar quines eren les inquietuds i necessitats del barri, amb la participació d'entitats i persones a títol individual. Els resultats d'aquest procés es poden consultar a la web participa.ripollet.cat i també van estar exposats a la plaça Emma Maleras durant uns mesos. Adquirit l'immoble, el maig de 2019, es va encarregar a l'empresa Velclus l'estudi del seu valor patrimonial, que es va finalitzar el segon trimestre de 2020. Amb tota la informació recollida es va encarregar el Pla d'usos de la casa. Un pla que ha estat realitzat pels arquitectes Manel Julià i Marta Urbiola, d'MSM Arquitectes, tots dos especialitzats en la rehabilitació i adequació d'edificis històrics.
Des del CIP i l'Arxiu, s'ha començat a inventariar i documentar tota la part d'objectes i documents localitzats a la casa i cedits pels propietaris. A més, des d'Urbanisme es treballa en la modificació del PGM per tal que l'edifici pugui passar a ser equipament municipal. Restarà treballar, un cop es faci el pla d'usos de l'edifici al costat de l'escola Tiana, en el model de gestió dels dos equipaments.

La vida a Ripollet de principis del segle XX
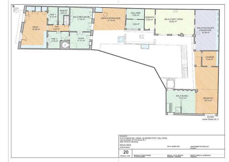
La tasca dels arquitectes Manel Julià i Marta Urbiola ha consistit, com van explicar durant la presentació, en fer un nou aixecament perimetral, estudiar aquelles parts museïtzables i distribuir els usos encarregats en els espais disponibles. L'edifici, construït el 1904 en una superfície de 425 m2 i ampliat als anys 30, comptava amb una mercercia com a negoci familiar, amb entrada per la carretera de l'Estació; la part d'habitatge, i una zona agrícola, amb entrada pel carrer Doctor Gil.
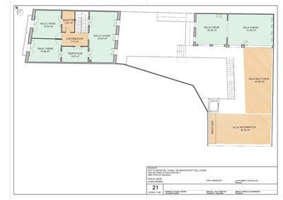
El Pla proposa preservar elements com els mobles de la botiga, el forn de pa, l'aljub, el cup i les menjadores dels animals, així com els espais de la cuina, el rebost, diferents habitacions, el safareig o el galliner. La resta d'espais de la casa, de petites dimensions, es complementarien amb sales més grans, de nova construcció, a la primera planta de la zona agrícola, més malmesa i on s'ha considerat que s'havia de fer un nou forjat. Així, als 275 m2 construïts actualment, se sumarien entre 100 i 125 metres més. Els usos proposats són un arxiu, sales polivalents, sales dedicades a infants, gent jove i gent gran, espai d'exposicions, aula d'informàtica, despatxos, lavabos, magatzem i recepció.
L'accés tindrà lloc pel carrer Dr. Gil, més accessible, i els dos cossos de la casa s'uniran amb un porxo, a més d'instal·lar un ascensor, una escala i una passera exterior.